Opis nieruchomości
Wynagrodzenie pośrednika w cenie !
Do sprzedania nowoczesne mieszkanie z ogrodem i garażem. Dwupoziomowy lokal mieszkalny w budynku jednorodzinnym w zabudowie szeregowej zlokalizowany jest w południowej części Zgorzelca, na nowoczesnym osiedlu przy Placu Ujazdowskim. Budynek oddany do użytku w pod koniec 2021 roku. Powierzchnia mieszkania wynosi 102,95 m2 i obejmuje na parterze salon z aneksem kuchennym, hol, WC oraz pomieszczenie gospodarcze. Na piętrze znajdują się trzy sypialnie i łazienka wyposażona w natrysk i wannę z wyjściem na balkon. Dodatkową powierzchnię stanowi poddasze oraz garaż jako pomieszczenia przynależne o powierzchni 22,24 m2
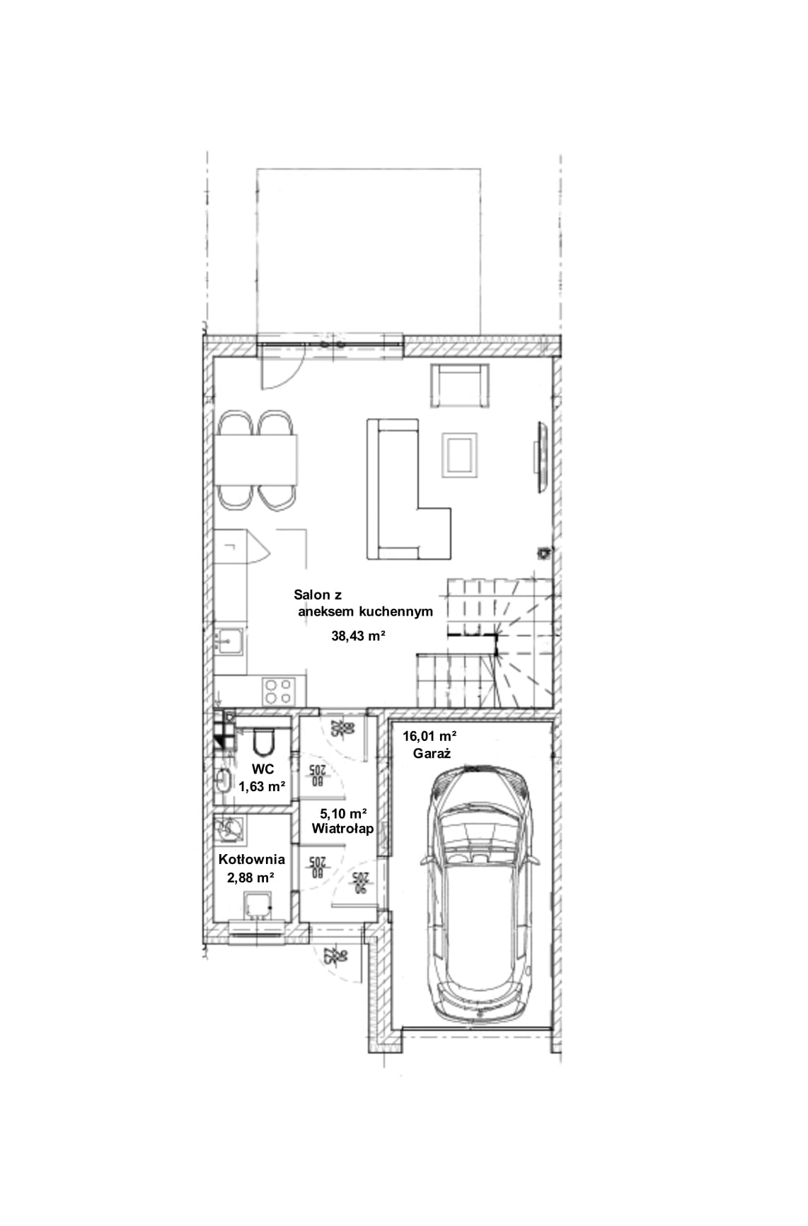
Zestawienie powierzchni PARTER:
• salon - 38,43 m2
• WC - 1,63 m2
• hol - 5,10 m2
• pomieszczenie gospodarcze/kotłownia 2,88 m2
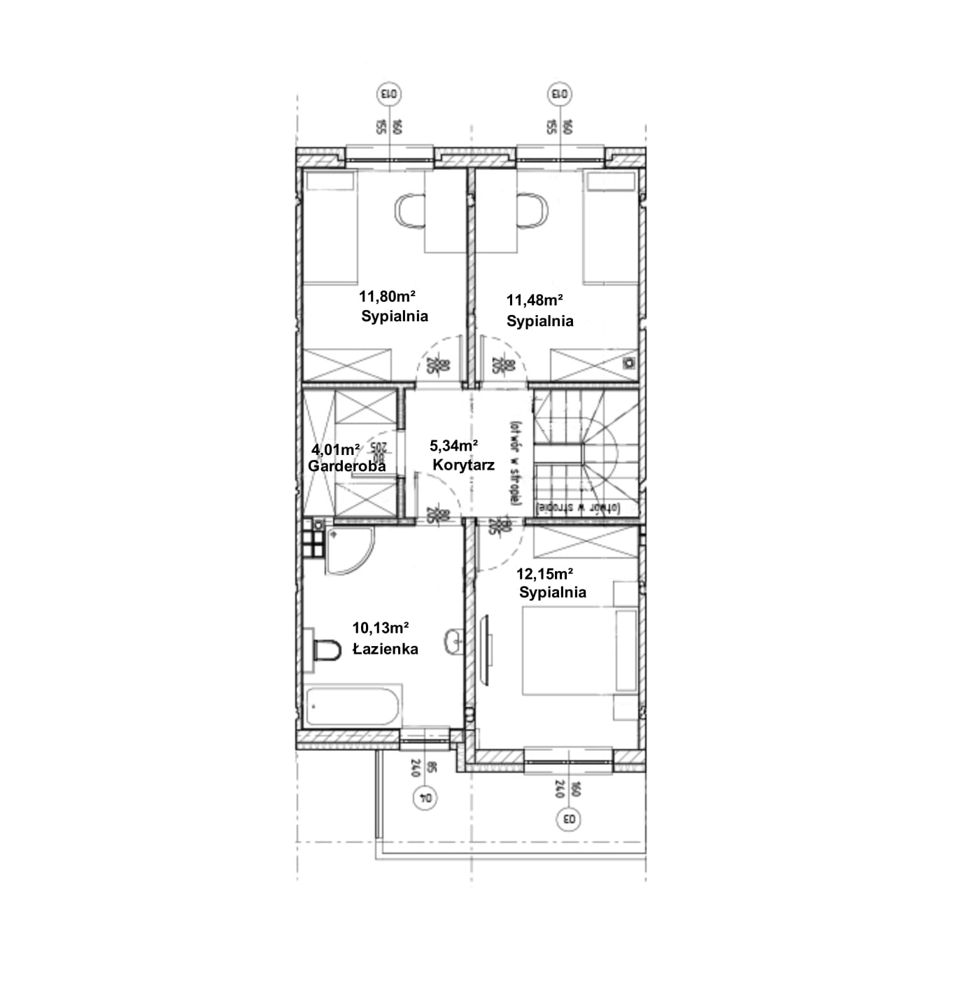
PIĘTRO:
• korytarz - 5,34 m2
• łazienka - 10,13 m2
• sypialnia - 11,80 m2
• sypialnia - 11,48 m2
• sypialnia - 12,15 m2
• garderoba - 4,01 m2
• strych - 6,23 m2
• garaż - 16,01 m2
Budynek wyposażony jest w instalacje:
• elektryczną miedzianą
• wod.-kan. z odprowadzeniem do sieci miejskiej
• gazową wraz z dwufunkcyjnym piecem gazowym C.O. marki Viessmann
• centralnego ogrzewania (podłogowego na całym parterze) na piętrze w pokojach z grzejnikami sterowaną programatorem elektronicznym
• w łazience na piętrze ogrzewanie podłogowe plus grzejnik drabinkowy
• światłowodową
• zmiękczacz do wody
Stolarka okienna trzyszybowa z zewnętrznymi roletami sterowanymi elektrycznie we wszystkich oknach.
Do wyłącznego użytku właściciela (w ramach udziału w działce o pow. 453 m2 na której posadowiony jest budynek) jest ogród oraz podjazd przed budynkiem wyłożony kostką. W ogrodzie taras wyłożony płytami. Wnętrza lokalu wykończono z wysokiej jakości materiałów.
Zagospodarowanie terenu i infrastruktura osiedla:
Budynek jest częścią spójnej koncepcji osiedla mieszkaniowego Plac Ujazdowski, które w całości zostało zrealizowane przez tego samego inwestora. Kompleksowy charakter przedsięwzięcia pozwolił na zachowanie
jednolitego standardu wykonania, harmonii architektonicznej oraz wysokiej jakości wykończenia wszystkich budynków i przestrzeni wspólnych.
Do dyspozycji mieszkańców pozostaje prywatna droga wewnętrzna, w której nabywają udział w cenie lokalu. Droga została urządzona i oświetlona, wyposażona w ciągi piesze, miejsca parkingowe dostępne dla wszystkich mieszkańców oraz ich gości a także nasadzenia roślin ozdobnych podkreślające estetykę osiedla.
Na terenie inwestycji zaprojektowano również plac zabaw wykonany z bezpiecznych, certyfikowanych materiałów, stanowiący przestrzeń rekreacyjną dla najmłodszych mieszkańców.
Całość układu komunikacyjnego i rekreacyjnego tworzy spójną, funkcjonalną i bezpieczną przestrzeń, sprzyjającą codziennemu użytkowaniu oraz integracji mieszkańców osiedla.
Lokalizacja:
Osiedle położone jest w południowej rozwijającej się części miasta. W pobliżu znajduje się szkoła podstawowa, market spożywczy, ścieżka rowerowa. Lokalizacja dobrze skomunikowana z drogą krajową w kierunku Bogatyni.
Pośrednik odpowiedzialny za ofertę Henryk Krupiński licencja nr 3189.
Dane zamieszczone są na podstawie informacji dostarczonych przez właściciela.
Oferta dotycząca nieruchomości nie stanowi oferty w rozumieniu art. 66 i następnych Kodeksu Cywilnego.

Agent prowadzący:
Karolina Kużownik
Tel.agenta: 881 345 771
Odp. zawodowo: Henryk Krupiński
Numer licencji: 3189
E-Mail: agencja_hk@wp.pl