Zgorzelec
CENA: 395 000 zł
Wynagrodzenie pośrednika w cenie!
 |
Liczba pokoi: 2 |
 |
Pow. mieszkania: 38,77 m² |
 |
Piętro: parter z ogrodem |
Opis nieruchomości
Wynagrodzenie pośrednika w cenie !
Do sprzedania nowe 2 pokojowe mieszkanie z balkonem w stanie deweloperskim idealne jako inwestycja pod wynajem.
Mieszkanie położone jest na parterze budynku oddanego do użytku w 2025 roku.
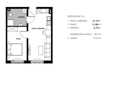
Powierzchnia mieszkania wynosi 38,77 m2 i obejmuje pokój z aneksem kuchennym, sypialnię (oba pomieszczenia z wyjściem na taras i do ogrodu) oraz łazienkę.
Zestawienie powierzchni:
pokój z aneksem kuchennym - 21,14 m2
sypialnia - 11,88 m2
łazienka - 5,75m2
Stan deweloperski:
– Instalacje:
•elektryczną wraz z gniazdami i włącznikami
•sanitarną wraz z zestawem podtynkowym do toalety
•centralnego ogrzewania podłogowego (plus grzejnik drabinkowy w łazience) sterowaną programatorem elektronicznym
•światłowodową
•wideodomofon
–stolarkę okienną trzyszybową z zewnętrznymi roletami sterowanymi elektrycznie
–ściany zagruntowane, przygotowane do malowania
–betonowa wylewka gotowa pod montaż paneli/płytek
Dodatkowa przestrzeń:
W cenie mieszkania kupujący otrzymuje komórkę lokatorską przypisaną do mieszkania o powierzchni około 3 m2.
Udogodnienia:
Inwestycja dostosowana dla potrzeb osób niepełnosprawnych- budynek posiada szerokie i wygodne ciągi komunikacyjne z bez progowymi przejściami, szerokie drzwi oraz windę do poziomu garażu podziemnego.
Części wspólne:
Części wspólne budynku zaprojektowano i wykonano z wykorzystaniem materiałów wykończeniowych o wysokiej jakości i podwyższonej trwałości, zapewniających długą żywotność oraz estetyczny wygląd przestrzeni. Całość zaprojektowano zgodnie z obowiązującymi normami technicznymi oraz zasadami nowoczesnej architektury użytkowej, zapewniając ponadprzeciętny standard estetyczny i funkcjonalny, który wyróżnia inwestycję na tle konkurencyjnych realizacji.
Zagospodarowanie terenu i infrastruktura osiedla:
Budynek jest częścią spójnej koncepcji osiedla mieszkaniowego Plac Ujazdowski, które w całości zostało zrealizowane przez tego samego inwestora. Kompleksowy charakter przedsięwzięcia pozwolił na zachowanie
jednolitego standardu wykonania, harmonii architektonicznej oraz wysokiej jakości wykończenia wszystkich budynków i przestrzeni wspólnych.
Do dyspozycji mieszkańców pozostaje prywatna droga wewnętrzna, w której nabywają udział w cenie lokalu. Droga została urządzona i oświetlona, wyposażona w ciągi piesze, miejsca parkingowe dostępne dla wszystkich mieszkańców oraz ich gości a także nasadzenia roślin ozdobnych podkreślające estetykę osiedla.
Na terenie inwestycji zaprojektowano również plac zabaw wykonany z bezpiecznych, certyfikowanych materiałów, stanowiący przestrzeń rekreacyjną dla najmłodszych mieszkańców.
Całość układu komunikacyjnego i rekreacyjnego tworzy spójną, funkcjonalną i bezpieczną przestrzeń, sprzyjającą codziennemu użytkowaniu oraz integracji mieszkańców osiedla.
Lokalizacja:
Osiedle położone jest w południowej rozwijającej się części miasta. W pobliżu znajduje się szkoła podstawowa, market spożywczy, ścieżka rowerowa. Lokalizacja dobrze skomunikowana z drogą krajową w kierunku Bogatyni.
*do ceny należy doliczyć 5000 zł za udział w prywatnej urządzonej drodze dojazdowej
Pośrednik odpowiedzialny za ofertę Henryk Krupiński licencja nr 3189.
Dane zamieszczone są na podstawie informacji dostarczonych przez właściciela.
Oferta dotycząca nieruchomości nie stanowi oferty w rozumieniu art. 66 i następnych Kodeksu Cywilnego.

Agent prowadzący:
Karolina Kużownik
Tel.agenta: 881 345 771
Odp. zawodowo: Henryk Krupiński
Numer licencji: 3189
E-Mail: agencja_hk@wp.pl