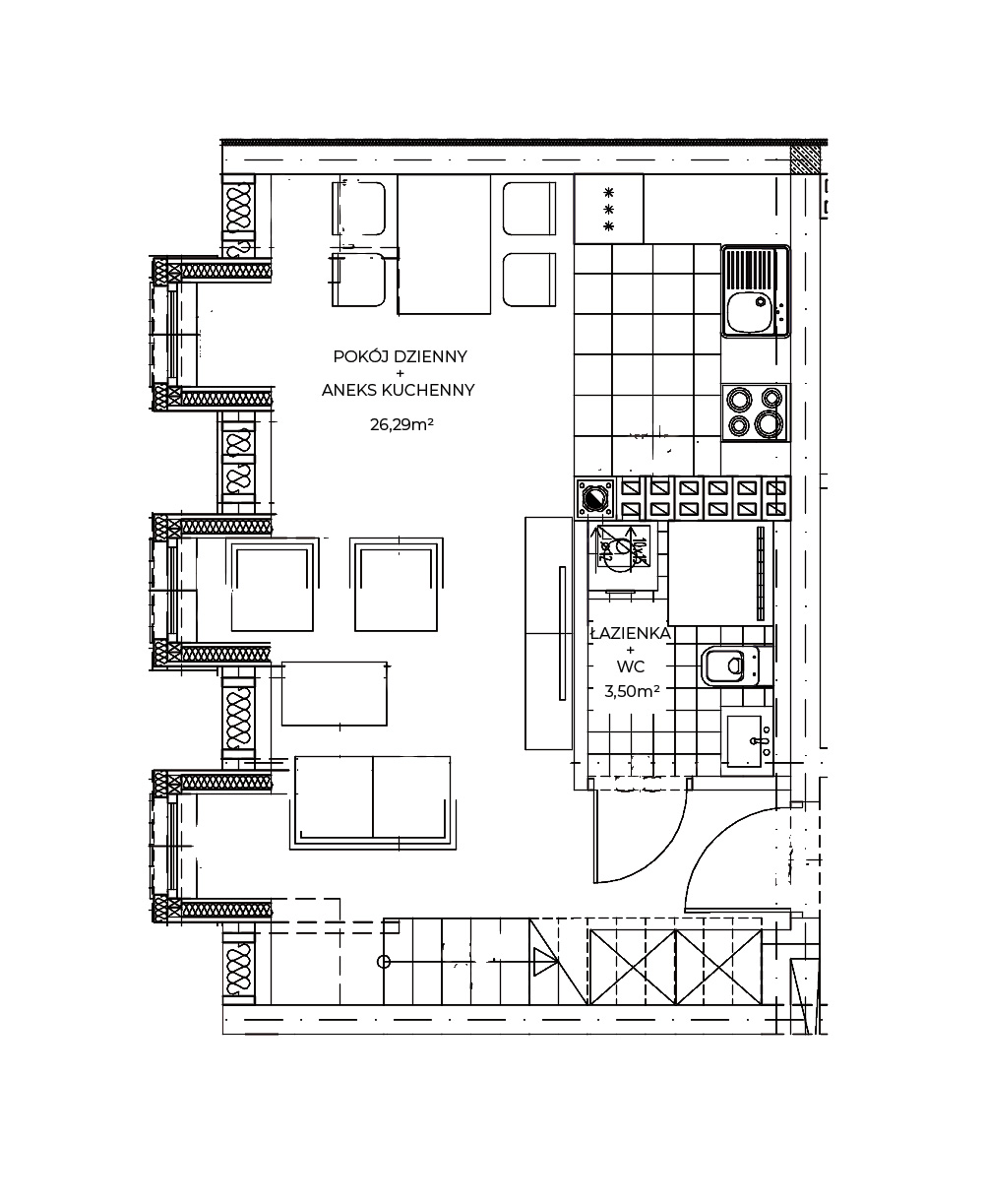
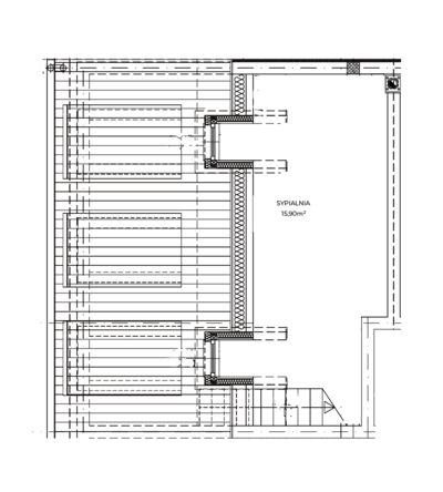
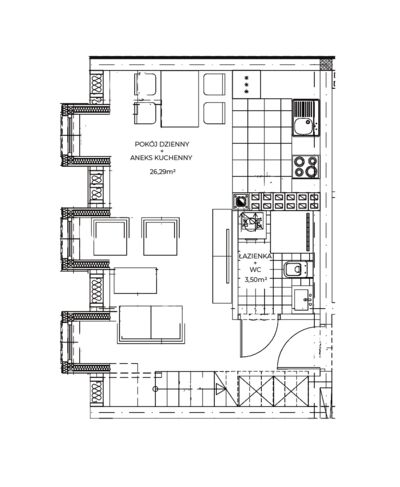
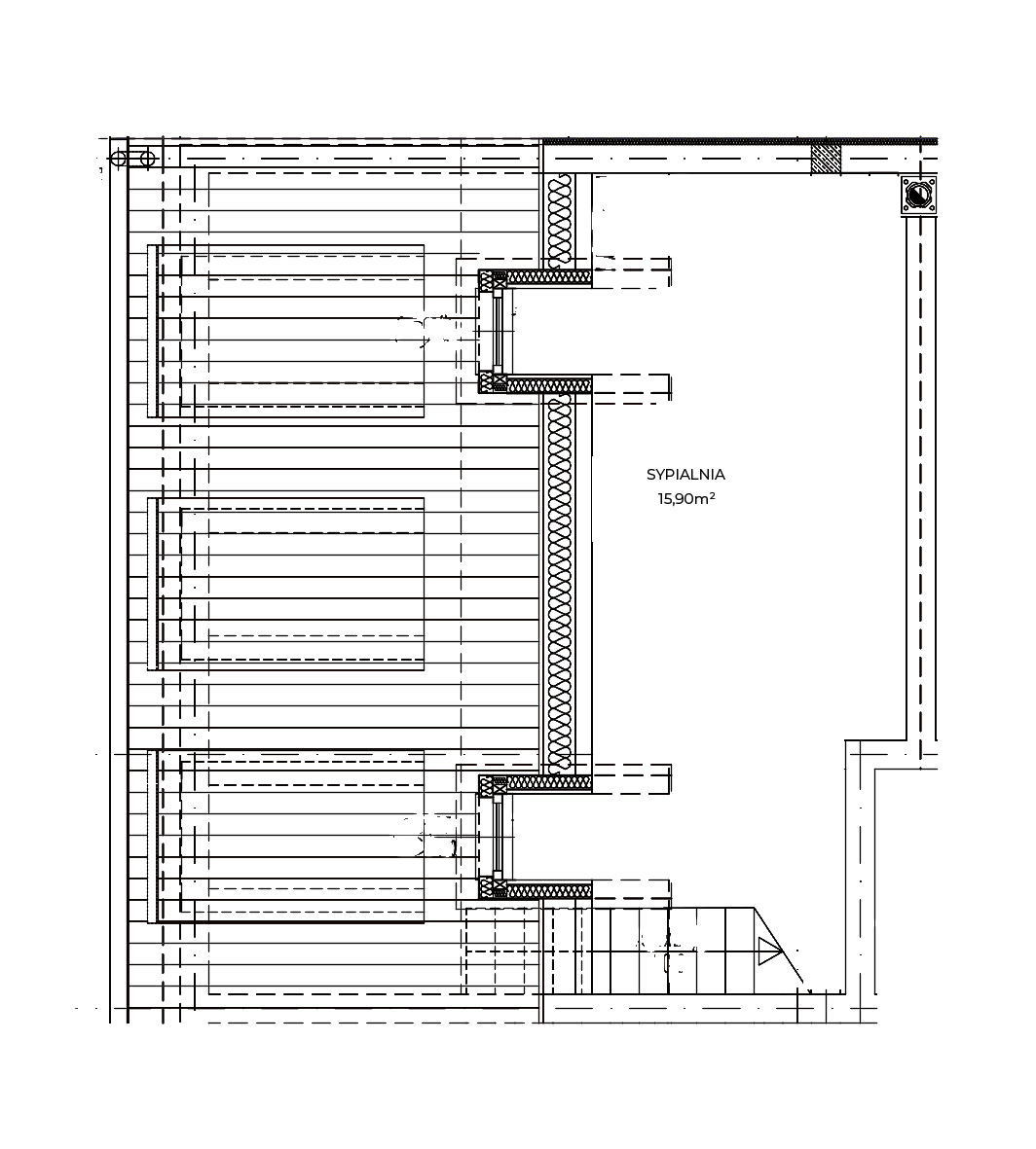
Mieszkanie 14
DANE MIESZKANIA:
Poziom: Poddasze
Pokój z Aneksem kuchennym 26,29 m²
Łazienka z WC 3,50 m²
Balkon: 0 m²
Sypialnia II Piętro: 15,90 m²
Razem: 45,69 m²
Galeria mieszkania
Dodatkowe informacje
Agent prowadzący:
Karolina Kużownik
Tel.agenta: 881 345 771
Odp. zawodowo: Henryk Krupiński
Numer licencji: 3189
E-Mail: agencja_hk@wp.pl
