Jerzmanki/Zgorzelec
CENA: 560 162,60 zł netto + 23%VAT
Wynagrodzenie pośrednika w cenie!
| Pow. działki:3000 m² | |
| Budowlana |
Galeria nieruchomości
Opis nieruchomości
Wynagrodzenie pośrednika w cenie !
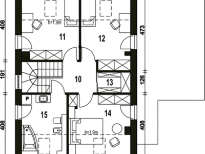
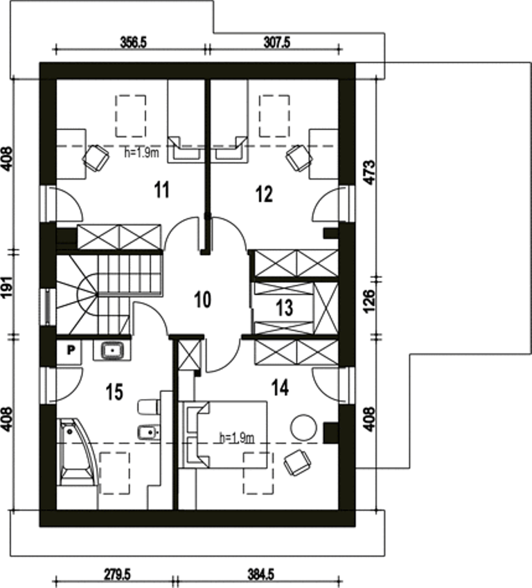
Do sprzedania kompleks siedmiu działek budowlanych wraz z projektem i pozwoleniem na budowę siedmiu budynków mieszkalnych w zabudowie szeregowej. Nieruchomość położona jest na nowym osiedlu, wśród powstającej zabudowy jednorodzinnej, w administracyjnych granicach wsi Jerzmanki, z dojazdem od strony ul. Zielnej w Zgorzelcu. Łączna powierzchnia działek wynosi 3000 m2 z czego powierzchnia dwóch skrajnych działek to około 500 m2, każdej z pięciu środkowych działek to około 400 m2. Każda z nich płaska, kształtem zbliżona do prostokąta. W miejscowym planie zagospodarowania przestrzennego działka oznaczona symbolem 10.MN- zabudowa mieszkalna jednorodzinna. Powierzchnia budynków objętych projektem wynosi 130,85 m2. Budynki niepodpiwniczone, dwukondygnacyjne z użytkowym poddaszem i garażem o powierzchni 23,49 m2. Dostępne lokalne media: gaz, wodociąg, kanalizacja sanitarna miejska oraz sieć energetyczna przy działce. Oferta skierowana do inwestorów, nieruchomości sprzedawane w kompleksie, nie ma możliwości zakupu pojedynczej działki. Cena zawiera udział w drodze dojazdowej.
Pośrednik odpowiedzialny za ofertę Henryk Krupiński licencja nr 3189.
Dane zamieszczone są na podstawie informacji dostarczonych przez właściciela.
Oferta dotycząca nieruchomości nie stanowi oferty w rozumieniu art. 66 i następnych Kodeksu Cywilnego.
Agent prowadzący:
Karolina Kużownik
Tel.agenta: 881 345 771
Odp. zawodowo: Henryk Krupiński
Numer licencji: 3189
E-Mail: agencja_hk@wp.pl
